$1,750,000

23705 Old Ferry Road #15
Spicewood, TX 78669
4

Beds

2.5

Baths

1

Living

1

Dining

4.55

Acres

Architecturally Significant Riverfront Retreat on 4.5 Acres

Perched on a high bluff above the Pedernales River arm of Lake Travis, this striking residence is a rare blend of award-winning architecture, thoughtful sustainability, and serene Hill Country living. Designed by renowned architects Kevin Alter and David Heymann—both esteemed professors at the University of Texas at Austin School of Architecture—the home received the 1998 AIA Austin Honor Award and was featured in Texas Architect magazine’s “Architecture of Place” (July/August 1998).

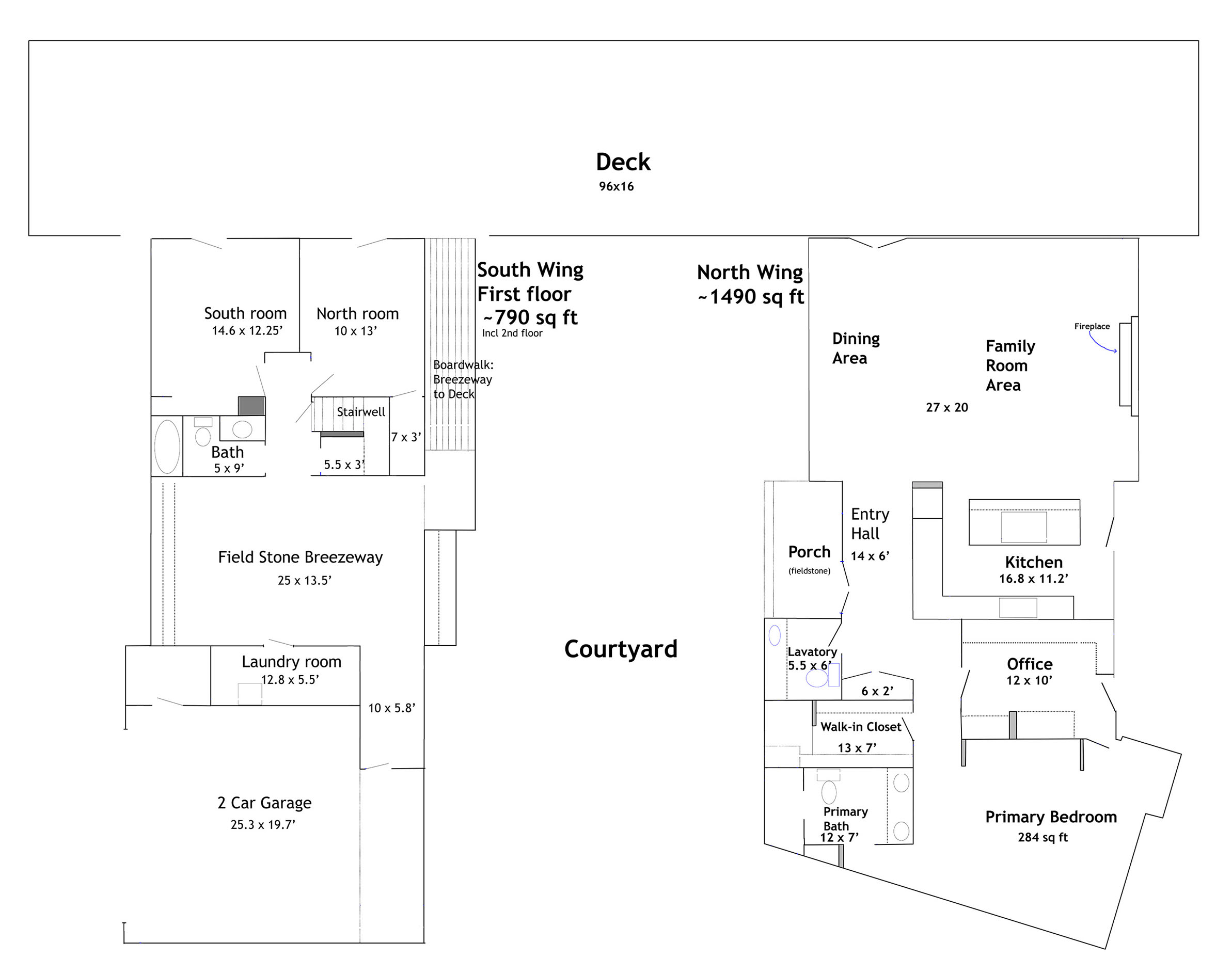
Custom built in 1998 for its current owners, the home was conceived with an emphasis on energy efficiency and harmony with the land. With 400 feet of water frontage, the 4.5-acre property enjoys panoramic sunset views and constant breezes that flow across the 96-foot-long west-facing deck connecting the home’s north and south wings.

The north wing features an open-concept living, dining, and kitchen space with solid oak floors, granite countertops, custom cabinetry, and a limestone brick fireplace. Expansive windows along the west and north walls flood the interior with natural light while offering breathtaking views of the Hill Country and river below.

The south wing includes a two-car garage and a flexible bedroom layout: two bedrooms and a full bath on the main level, plus an airy upper-level suite with private deck access. A breezeway funnels southerly winds into the courtyard, enhancing passive cooling throughout the warmer months. Ceiling fans in every room and a clerestory with three operable windows further elevate airflow and comfort.

The primary suite includes engineered wood flooring, a large walk-in shower, granite counters, and a retractable, remotely controlled sunshade that minimizes summer heat while preserving westward views.

Notable modern updates and features include:

- Rainwater collection system (primary water source since 2010)

- Solar panel system (active since May 2020)

- Two Trane HVAC systems (installed Nov 2024)

- Dock with boat slip

Although a portion of the land falls under LCRA floodplain mapping, the residence itself is safely elevated approximately 70 feet above the maximum controlled level of Lake Travis.

This is a rare opportunity to own a piece of architectural history, meticulously maintained and sustainably designed, in one of the most scenic waterfront locations in Central Texas.

Contact Chad Mahagan for more information or to schedule a private tour.

More Info

Details

Subdivision: Milam Ranch
Year Built: 1998

Schools

Lake Travis ISD:
West Cypress Hills Elementary School
Lake Travis Middle School
Lake Travis High School
Chad Mahagan

Chad Mahagan

Broker Associate

chad@moreland.com
(512) 773-6281

Leslie Spencer

Leslie Spencer

REALTOR®

lspencer@moreland.com
(512) 964-5708

Contact